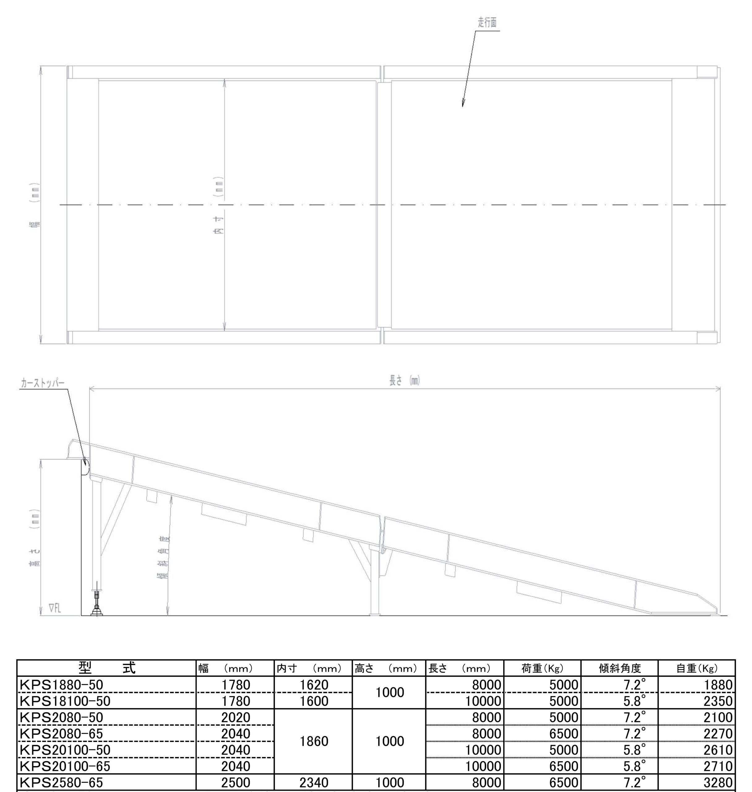
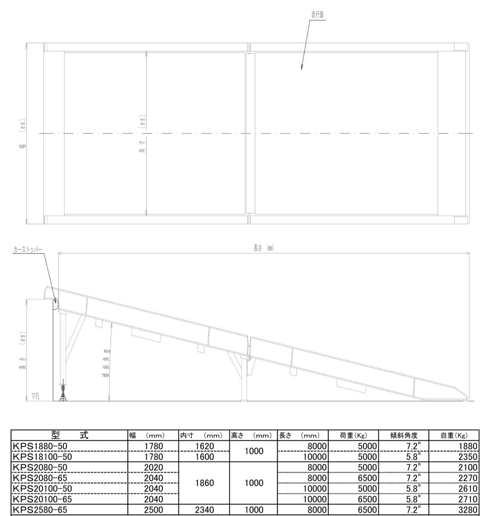
移動式スロープ

移動式スロープ

必要時のみ設置可能で撤去可能な移動式スロープ。

フォークリフトで設置及び撤去可能。

分割式でコンパクトに収納。

乗継部の一体化で走行がスムーズ。

走行部防滑塗装仕様

一般仕様及び型式一覧

走行部仕様: 防滑塗装 縞鋼板塗装 縞鋼板メッキ

分割数: 2分割 3分割

※ご要望により特別仕様も設計製作致します。